Bevendean History Project Photos
Plans for the Bates Estate, Moulsecoomb
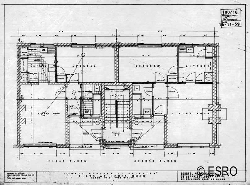
Plans for the Flats built in the 1950s
Plans for the Flats built in the 1970s