Bevendean History Project Photos
St Georges Hall in North Moulsecoomb
St Georges Hall was opened in 1930
and rebuilt as a community centre in 1989
.
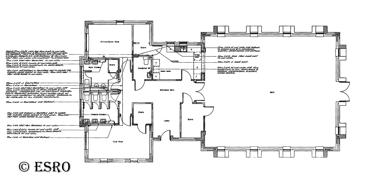
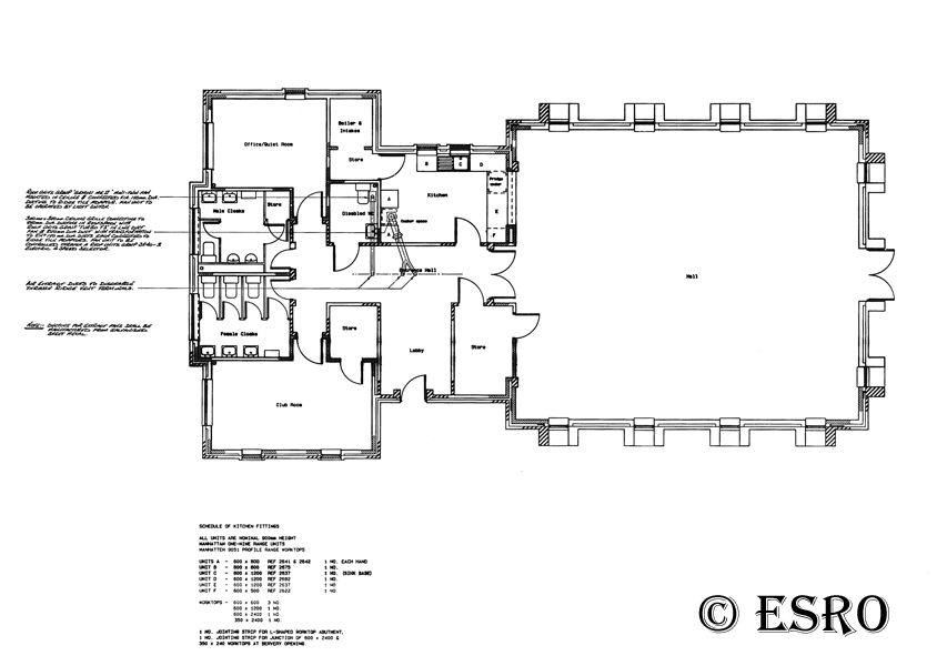
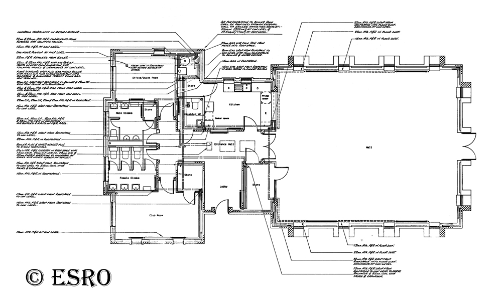
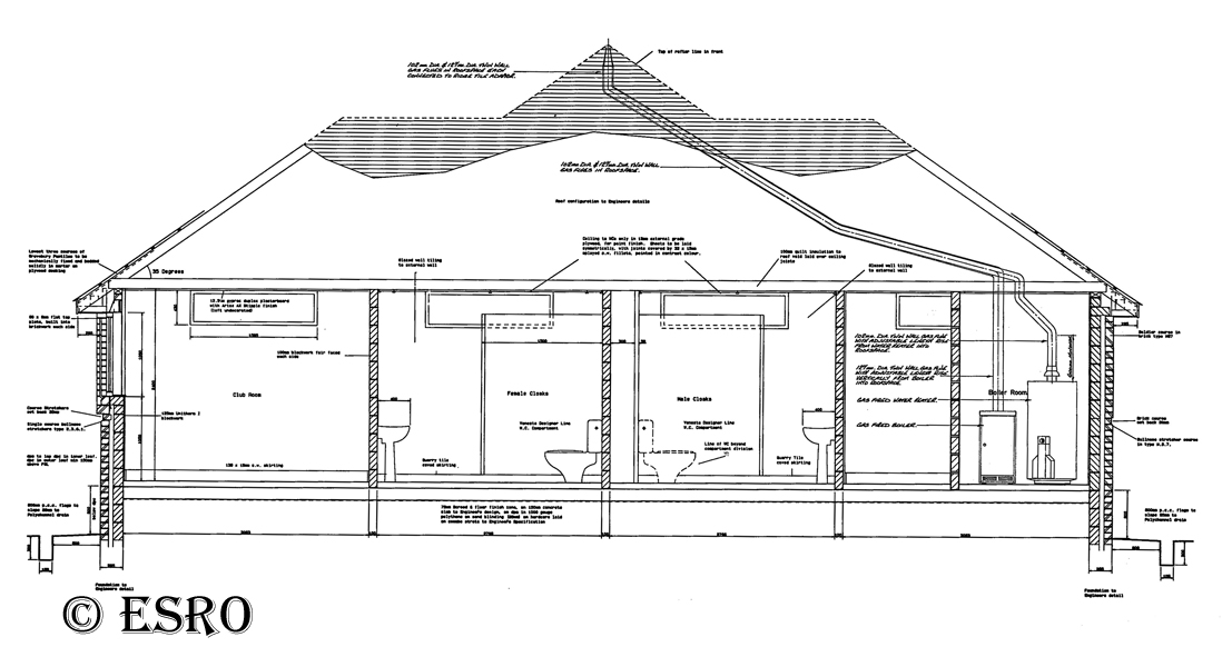
Plans for the new St Georges Hall dated January 1988