
Bevendean
History Project Photos
Lucraft
& Eggington Roads Plans & Photos 

Plans for the Brighton Enterprise Self-Build Housing Association Houses in Lucraft & Eggington Roads.


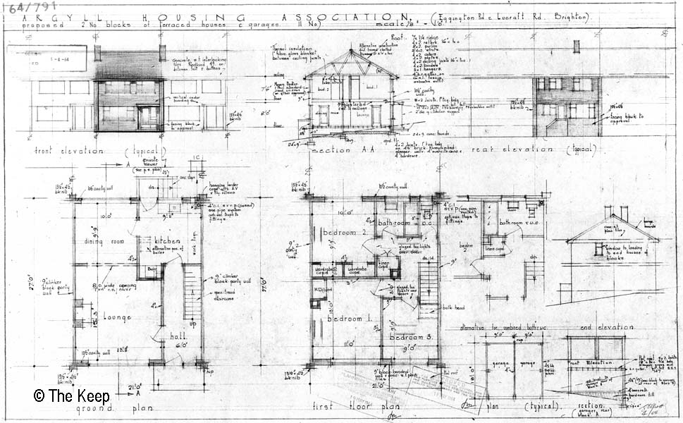
Plans for the Argyll Housing Association Houses in Lucraft & Eggington Roads.


Plans for The Ladysmith Housing Association Houses in Eggington Road.


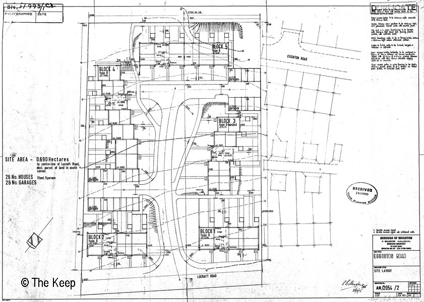
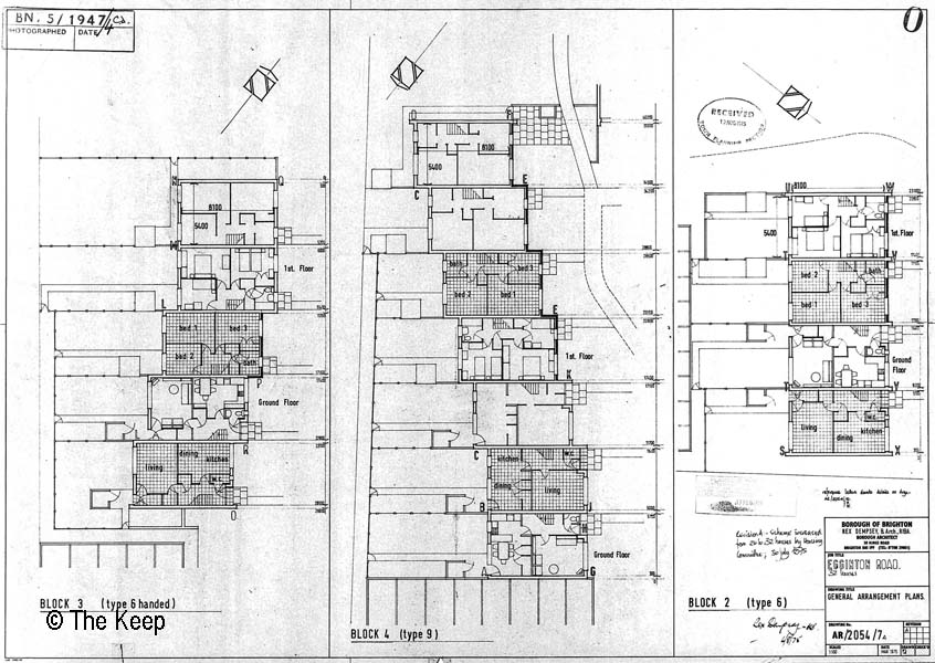
Plans for the Brighton Council Houses in Lucraft & Eggington Roads.








Photographs of the Self Build Houses in Lucraft Road



















Photographs of the Self Build Houses in Eggington Road





