Bevendean History Project Photos
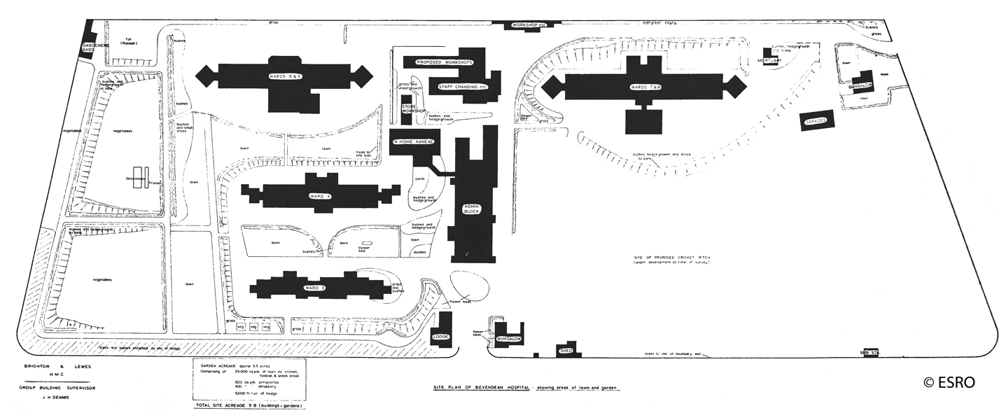
Bevendean Hospital Plans 1898 - 1982